-
-
-
Tổng tiền thanh toán:
-
Hotline
0854657777Hotline
0854657777Chứng nhận
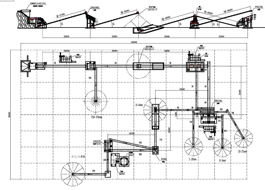
ISO 9001-2014Một dây chuyền nghiền đá 350 tấn/ giờ có xu hướng thay thế dần cho các dây chuyền nhỏ lẻ, công nghệ lạc hậu trước đây vì có những ưu điểm vượt trội về năng suất, tính kinh tế, độ ổn định và khả năng cung ứng.










Để biết thông tin về giá máy nghiền đá xây dựng các loại, xin vui lòng liên hệ trực tiếp với chúng Tôi
Mọi chi tiết liên hệ với Đại Việt theo số 0822.38.2222 để được tư vấn chi tiết hơn !
Miễn phí giao hàng toàn quốc
Tiếp tục mua hàng